Rezoning request for 153 units on Rio Road sails past Albemarle Planning Commission

Surer shot

Many public hearings for land use changes in Albemarle County are well-attended by nearby residents concerned about the impact of new development on their properties. Already in 2026, decisions on two rezoning requests have been deferred after the planning commission was persuaded by arguments from neighbors.

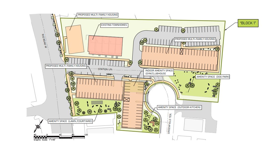
On February 24, there was no opposition to a request from Piedmont Realty Holdings to rezone 3.2 acres to the Neighborhood Model District on 600 Rio Rd. W in order to build up to 153 new residential units. If constructed at the full level, the residential density would be 47.8 units per acre. 

“This has been identified as a place where we want urban-style residential construction, and it is a key growth area, and densification of that part of our community is appropriately located,” said Planning Commissioner Nathan Moore.

In contrast, an application to build 18 units on 3.15 acres in Crozet was sent back to the drawing board when residents objected to a density of just under six units per acre. 

County planner Cameron Langille said the Rio Road project is consistent with Albemarle’s growth management policy as well as a Rio Road/29 Small Area Plan adopted in December 2018. 

“It is providing new housing in the development area,” Langille said. “It is providing a new eight-foot sidewalk along the frontage of Rio Road West, which is a transportation improvement that is recommended by the small area plan.”

Langille said the developers have also agreed to provide land for a connection to a potential future county park to the north. Albemarle owns a 5.9-acre property that leads to Agnor Elementary School. Staff’s only negative factor is a concern that the project could add as many as 20 students to the school if fully built-out. 

Acting on behalf of the applicant, civil engineer Kelsey Schlein said the units would be rentals with a mix of two and three bedrooms. She also said the apartments might attract older residents without children. 

“It might be more working professionals, couples, single folks, older folks who, you know, don’t want to take care of a yard anymore and live a little closer into the city,” Schlein said. 

The property currently includes five existing townhomes and two commercial buildings that look like single-family residences. The NMD zoning does not require non-residential space to be built, but this project could build up to 20,000 square feet of commercial space depending on market conditions when it goes to construction. 

Commissioner Lonnie Murray wants to see a mixture of uses. 

“If we have too much residential and not enough commercial, then it ends up being a tax burden on the county,” Murray said. 

No one appeared in person before the Planning Commission for a public hearing, but one person took advantage of the virtual option to ask questions. 

If approved by the Board of Supervisors, the design will need to get approval from the Architectural Review Board. Commissioner Corey Clayborne of the Rivanna District urged the developers to not skimp on the design. 

“As it matures, just how you treat that space and the façades there as well, I think will be really important,” Clayborne said. “Hopefully it’s going to be a model for other great projects that come along in that corridor.” 

The request will go to the Board of Supervisors at a date yet to be determined.